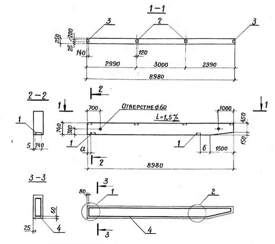
Балка навеса 1БН 9-1 представляет собой железобетонное изделие, предназначенное для использования в строительстве навесов и навесных конструкций. Изделие имеет прочную железобетонную конструкцию, которая обеспечивает надежность и долговечность в эксплуатации. Балка навеса 1БН 9-1 отличается высокой степенью устойчивости к воздействию внешних нагрузок и атмосферных условий, что делает его идеальным выбором для создания крытых пространств.
Балка навеса 1БН 9-1 широко используется в строительстве для создания навесов над входами, террасами, автомобильными стоянками и другими открытыми пространствами. Изделие обеспечивает надежную поддержку кровли и защиту от осадков, что делает его необходимым элементом при возведении крытых конструкций. Балка навеса 1БН 9-1 также применяется в архитектурных проектах для создания стильных и функциональных навесов, которые придают зданиям эстетичный вид и обеспечивают комфортное пространство для отдыха и работы.









